Due to the health concerns created by Coronavirus we are offering personal 1-1 online video walkthough tours where possible.


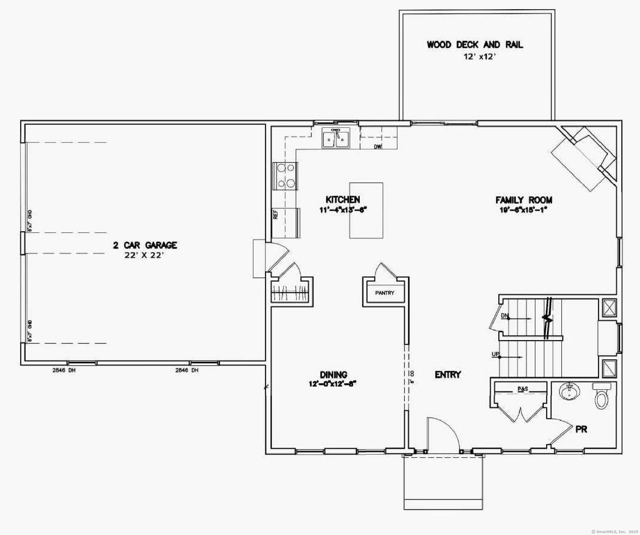
Lake Overlook Estates - an enclave of 12 homesites with stunning seasonal views of Lake Pocotopaug. Lot 4 - last home site available for Carma, LLC. The Colonial - offering a classic Colonial look. The first floor offers an open floor plan with great room and kitchen located in the entire back of home and a large dining room. The beautiful staircase is set to the side with open railings, a large window and window seat. The second floor offers a large primary bedroom suite and walk in closet and ensuite with walk in tile shower. One will also enjoy an oversized walk in laundry room with plenty of storage. Some possible options include front porch, 12x12 sunroom and so much more. Some additional standard features include granite counters, onsite finished hardwood floors throughout first and second floor, gas fireplace, decks, white cabinetry. The list goes on! Public sewer, public water. Please do not go onto site. Road is under construction.
| a week ago | Listing updated with changes from the MLS® | |
| a week ago | Listing first seen on site |
Did you know? You can invite friends and family to your search. They can join your search, rate and discuss listings with you.